Canterbury House

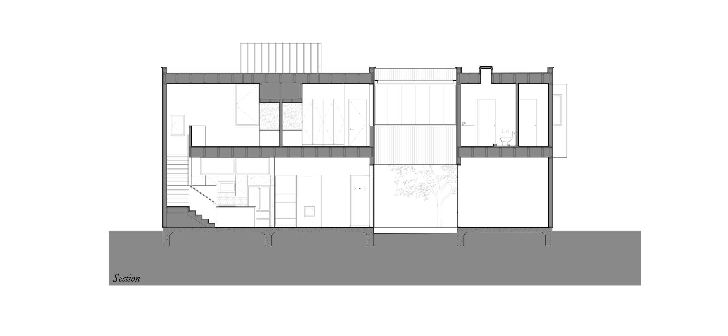
The Canterbury House is a compact urban home containing two bedrooms, a media room, and a fully detached guest suite in only 1,680 square feet. The home's form is inspired by traditional dog-trot houses. A courtyard serves as the core of the living space, extending the compact spaces on either side into a private outdoor space.

Read about this house in Dwell

Design Team: Murray Legge, Lincoln Davidson, Luca Sensie, Michael Norris
Builder: Curate
Consultants: Duffy Engineering, Land Dev Consulting
Photography: Leonid Furmansky
Size: 1,680 sf