Madison House

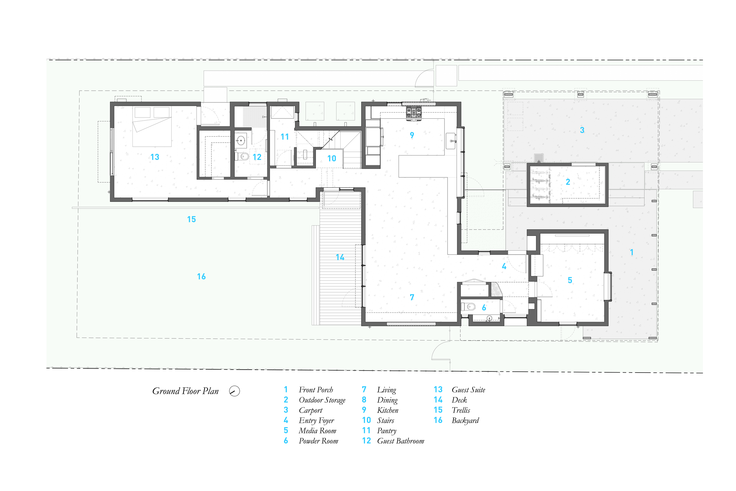
This single-family residence thoughtfully integrates into its surrounding neighborhood through careful attention to scale and context. The home features an innovative vertical lawn in the backyard that grows along a suspended trellis system, creating a striking green wall.

Design Team: Murray Legge, Travis Avery, Lincoln Davidson
Builder: Green Places
Engineering: Fort Structures
Interior Design: Allison Burke
Photography: Leonid Furmansky
Year Completed:  2021

front porch and native landscape
entry portal and interior courtyard
private entry couryard
custom bay window
vertical trellis system
vertical trellis system
exposed wood beam ceiling and kitchen
exposed wood beam ceiling
custom steel railing